Imeline koht suurema seltskonna jaoks! Maja on avar, puhas ja hästi varustatud. Saunatund tünnisaunas oli meie reisi üks meeldejäävamaid hetki.
Puhkemaja Hiiumaal
Tule puhka lummavate vaadetega majas Hiiumaal
Meie lugu
Maasika Villa asub Hiiumaal Paluküla lähedal – rahulikus ja vaiksemas nurgas, kust avaneb imeline vaade ümbritsevale loodusele. Meie majas on ruumi kuni 12 inimesele, mistõttu sobib see suurepäraselt pereväljasõitudeks, sõpruskonna koosviibimiseks või väiksemateks pidudeks.
Avara elutoa kõrgete lagede alt avaneb vaade terrassile ja aiale. Pärast pikka saunatundi või jalutuskäiku metsas on siin hea puhata, lugeda raamatut või nautida üksteise seltskonda.
Mugavused
Kokku 12 voodikohta, lisaks lapsevoodi ja söögitool pisematele külalistele.
Varustatud köök koos Philips Senseo kohvimasinaga ja kõige vajalikuga söögi valmistamiseks.
Tavaline saun majas ja köetav tünnisaun õues – rätikud sisalduvad paketis.
Avar terrass grilliga, kust avaneb lummav vaade loodusele.
Mugav pesu pesemine ja kuivatamine kohapeal, pikemateks peatumisteks.
Kliimaseade ja ventilatsioon tagavad mugava sisekliima aastaringselt.
Kaks vannituba duširuumi ja WC-ga – piisavalt mugavust suuremale seltskonnale.
Kõrgete lagedega elutuba, kust pääseb otse suurele terrassile.
Galerii














































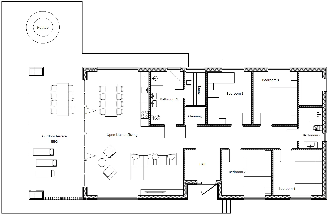
Planeering
Tutvu Maasika Villa ruumide paigutusega
Broneerimine
Vaata vabu aegu kalendrist ja saada broneerimisoov — vastame esimesel võimalusel.
Arvustused
Imeline koht suurema seltskonna jaoks! Maja on avar, puhas ja hästi varustatud. Saunatund tünnisaunas oli meie reisi üks meeldejäävamaid hetki.
Väga ilus ja rahulik asukoht Hiiumaal. Perenaine oli sõbralik ja abivalmis. Kindlasti tuleme veel tagasi!
Täpselt nii nagu piltidel – ehk veel parem. Köök on suurepäraselt varustatud ja terrassil grillimine koos vaatega oli lihtsalt maagiline.
Ideaalne paik pereväljasõiduks. Lapsed nautisid loodust ja täiskasvanud saunatunde. Majutus ületas ootused.
Asukoht
Maasika Villa asub Paluküla lähedal, rahulikus looduskaunis kohas.
Kontakt
Meil on hea meel kõigile küsimustele vastata. Kirjuta, helista või saada sõnum vormi kaudu.